Fig No. |
Index No. |
S t o c k e d
|
Group - Fuselage |
Units per assembly |
Blue prints |
| Major Assembly - Fuselage Assembly |
| Part number |
Description |
| 22 |
27  |
  |
87-21-610 |
    Bulkhead Assembly Station No. 10 (See Fig. 29) |
1   |
, , , |
| 22 |
28  |
  |
87-21-611 |
    Bulkhead Assembly Station No. 11 (See Fig. 29) |
1   |
, , , |
| 22 |
29  |
  |
87-21-612 |
    Bulkhead Assembly Station No. 12 (See Fig. 29) |
1   |
, , , |
| 22 |
30  |
  |
87-21-613 |
    Bulkhead Assembly Station No. 13 (See Fig. 30) |
1   |
, , , |
| 22 |
31  |
  |
87-21-614 |
    Bulkhead Assembly Station No. 14 (See Fig. 30) |
1   |
, |
| 22 |
32  |
  |
87-21-615 |
    Bulkhead Assembly Station No. 15 (See Fig. 31) |
1   |
, |
| 22 |
33  |
  |
87-21-616 |
    Bulkhead Assembly Station No. 16 (See Fig. 31) |
1   |
 |
| 22 |
34  |
  |
87-26-503-50 |
  Windshield Assembly (See Fig, 33) |
1   |
|
| 22 |
35  |
  |
87-26-917-1 |
    Panel Installation - Windshield (See Fig. 32) |
1   |
|
| 22 |
36  |
  |
87-250-1001 |
  Windshield Assembly (See Fig, 33) |
1   |
|
| 22 |
37  |
  |
87-250-1001-100 |
  Windshield Assembly (See Fig, 33) |
1   |
|
| 22 |
38  |
  |
87-250-1001-150 |
  Windshield Assembly (See Fig, 33) |
1   |
|
| 22 |
39  |
  |
87-25-501 |
  Cabin Assembly (See Fig. 34) |
1   |
|
| 22 |
40  |
  |
87-251-1001 |
  Cabin Assembly (See Fig. 34) |
1   |
|
| 22 |
41  |
  |
87-251-1001-100 |
  Cabin Assembly |
1   |
|
| 22 |
42  |
  |
87-210-1051 |
  Vision Installation - Rear (See Fig. 35) |
1   |
, , |
| 22 |
43  |
  |
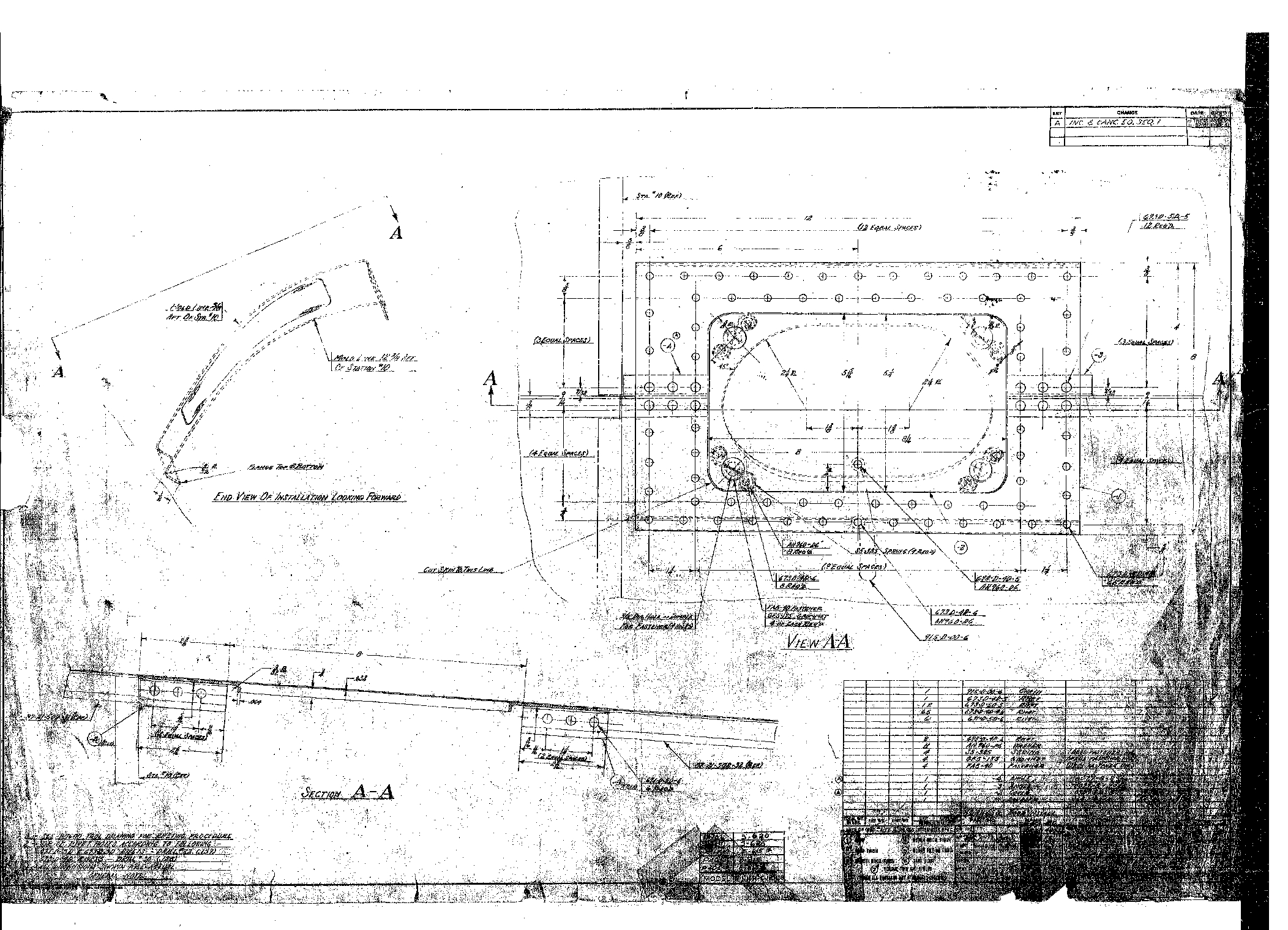
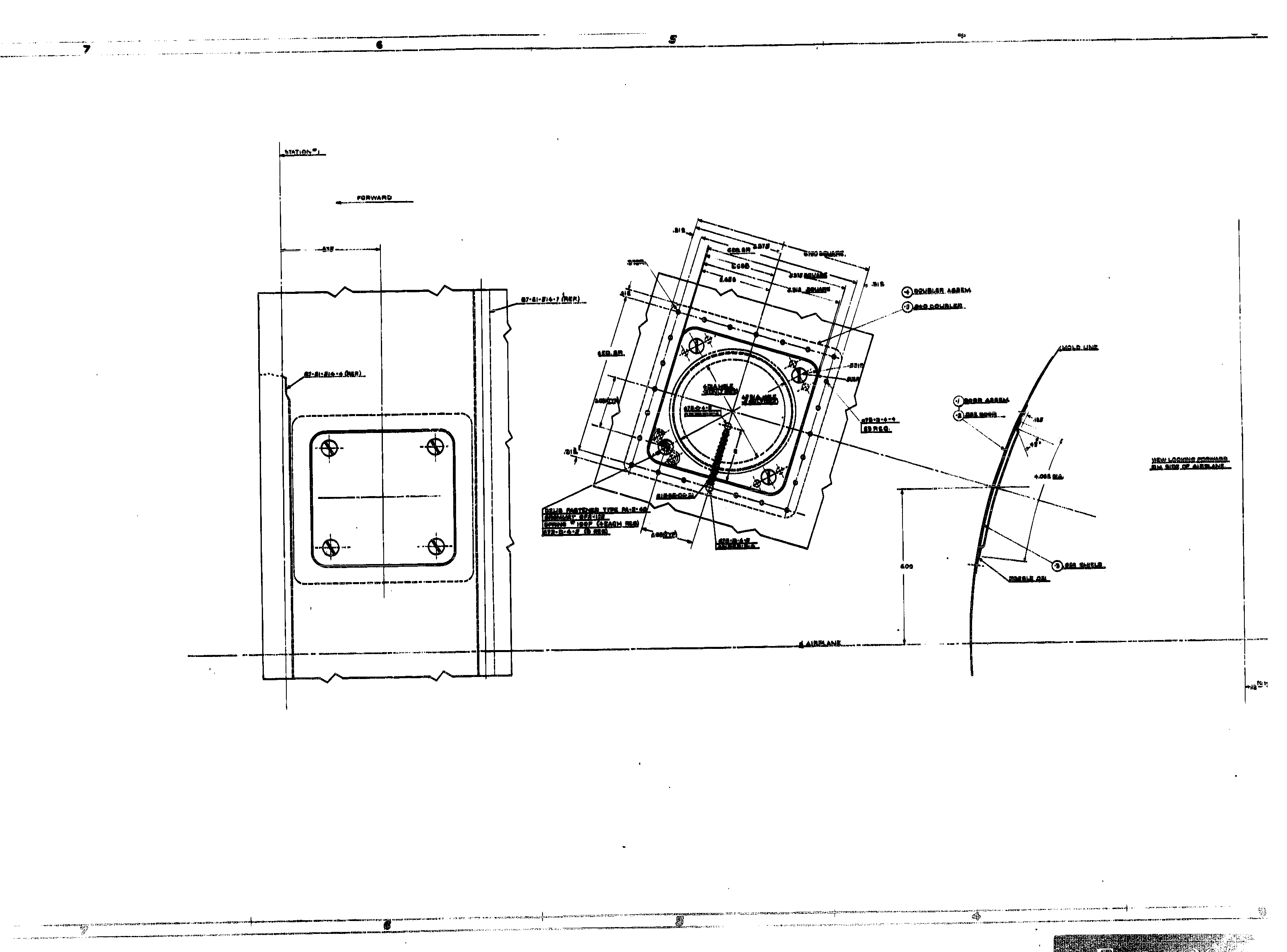
87-21-514-40 |
  Door - Front access |
1   |
|
| 22 |
44  |
  |
87-21-514-50 |
  Door - Front access |
1   |
|
| 22 |
45  |
  |
87-21-970 |
    Door Installation |
1   |
, , , |
| 22 |
46  |
  |
87-21-970-1 |
      Door Assembly |
1   |
|
| 22 |
47  |
  |
FA5-40 |
        Fastener (Dzus) |
4   |
|
| 22 |
48  |
  |
GF5-175 |
        Grommet (Dzus) |
4   |
|
| 22 |
49  |
  |
1101DS10 |
      Screw |
24   |
|
| 22 |
50  |
  |
87-21-549-1L |
  Cover Installation |
1   |
|
| 22 |
51  |
  |
87-21-549-1R |
  Cover Installation |
1   |
|
| 22 |
52  |
  |
87-21-549-2L |
    Cover Assembly LH |
1   |
|
| 22 |
53  |
  |
87-21-549-2R |
    Cover Assembly RH |
1   |
|
| 22 |
54  |
  |
AFA16 |
      Fastener (Dzus) |
4   |
|
| 22 |
55  |
  |
375F |
      Grommet (Dzus) |
4   |
|
| 22 |
56  |
  |
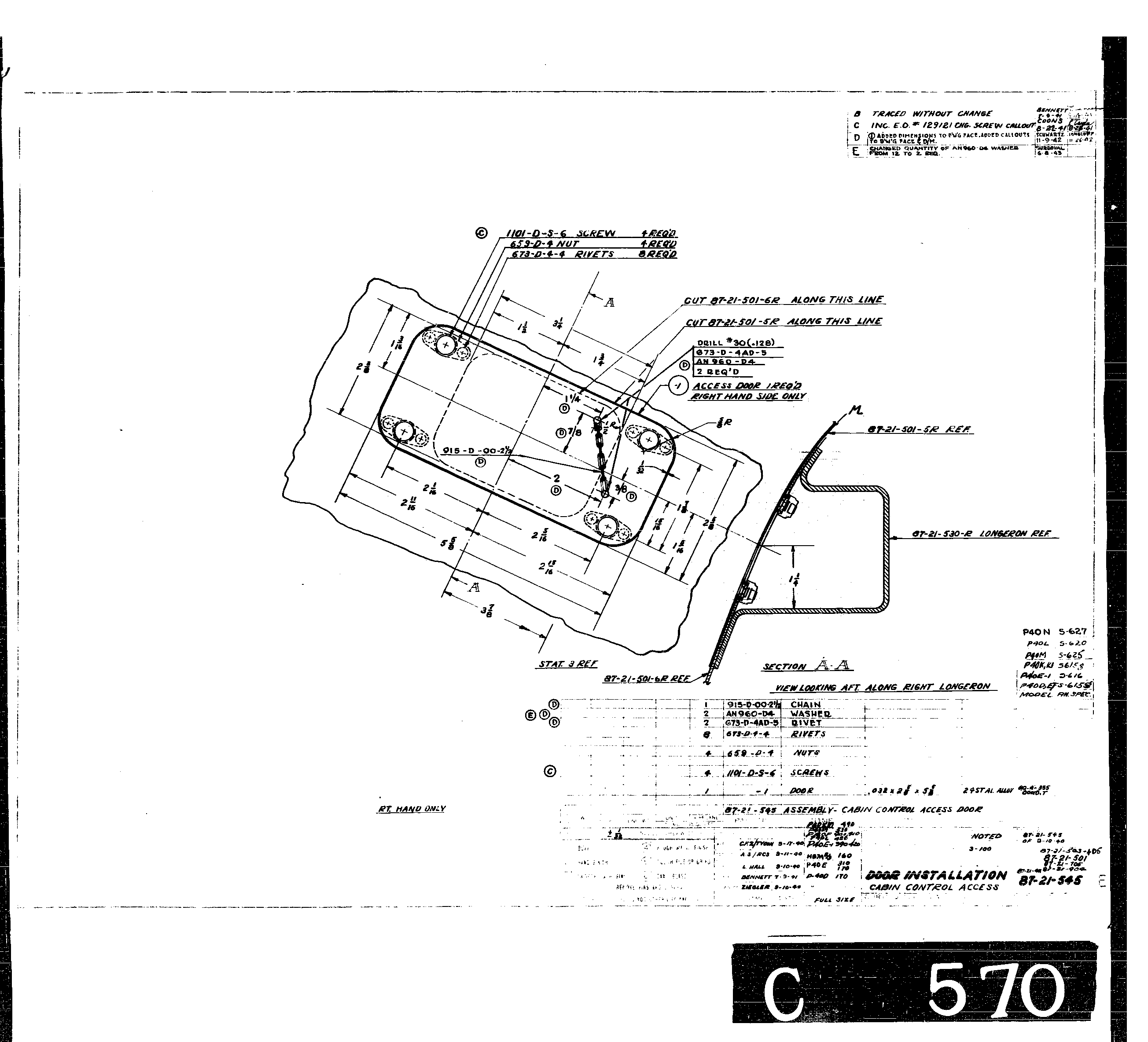
87-21-545 |
  Door Installation |
1   |
 |
| 22 |
57  |
  |
87-21-545-1 |
    Door |
1   |
|
| 22 |
58  |
  |
1101DSG-6 |
    Screw |
4   |
|
| 22 |
59  |
  |
659D4 |
    Nut |
4   |
|
| 22 |
60  |
  |
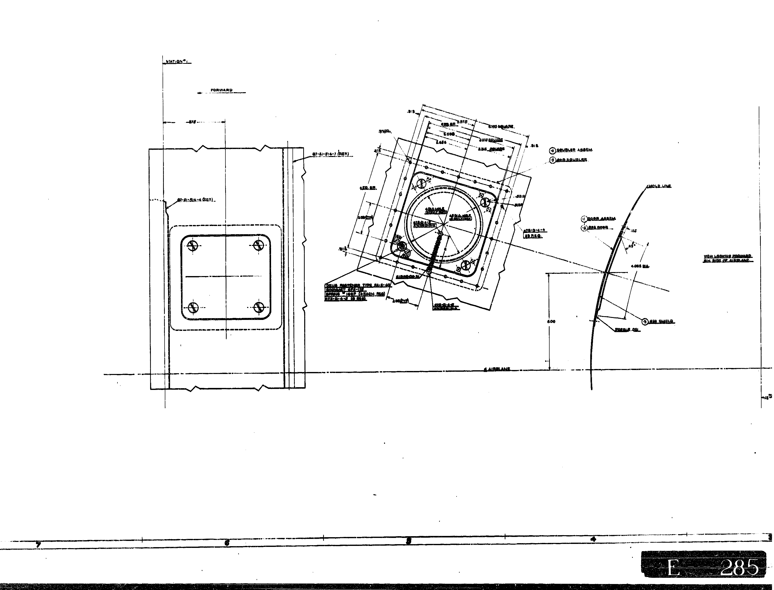
87-21-526 |
  Door Assembly (See Figure 36) |
1   |
, , , |
| 22 |
61  |
  |
FAW5-50 |
    Fastener (Dzus) |
2   |
|
| 22 |
48  |
  |
GF5-175 |
    Grommet (Dzus) |
2   |
|
| 22 |
62  |
  |
87-21-650 |
  Door Installation |
1   |
 |
| 22 |
63  |
  |
87-21-650-2 |
    Cover |
1   |
|
| 22 |
47  |
  |
FA5-40 |
    Fastener (Dzus) |
2   |
|
| 22 |
48  |
  |
GF5-175 |
    Grommet (Dzus) |
2   |
|
| 22 |
64  |
  |
87-21-522 |
  Door Assembly |
1   |
 |
| 22 |
65  |
  |
87-21-522-1 |
    Cover Assembly |
1   |
|