Fig No. |
Index No. |
S t o c k e d
|
Group - Power Plant |
Units per assembly |
Blue prints |
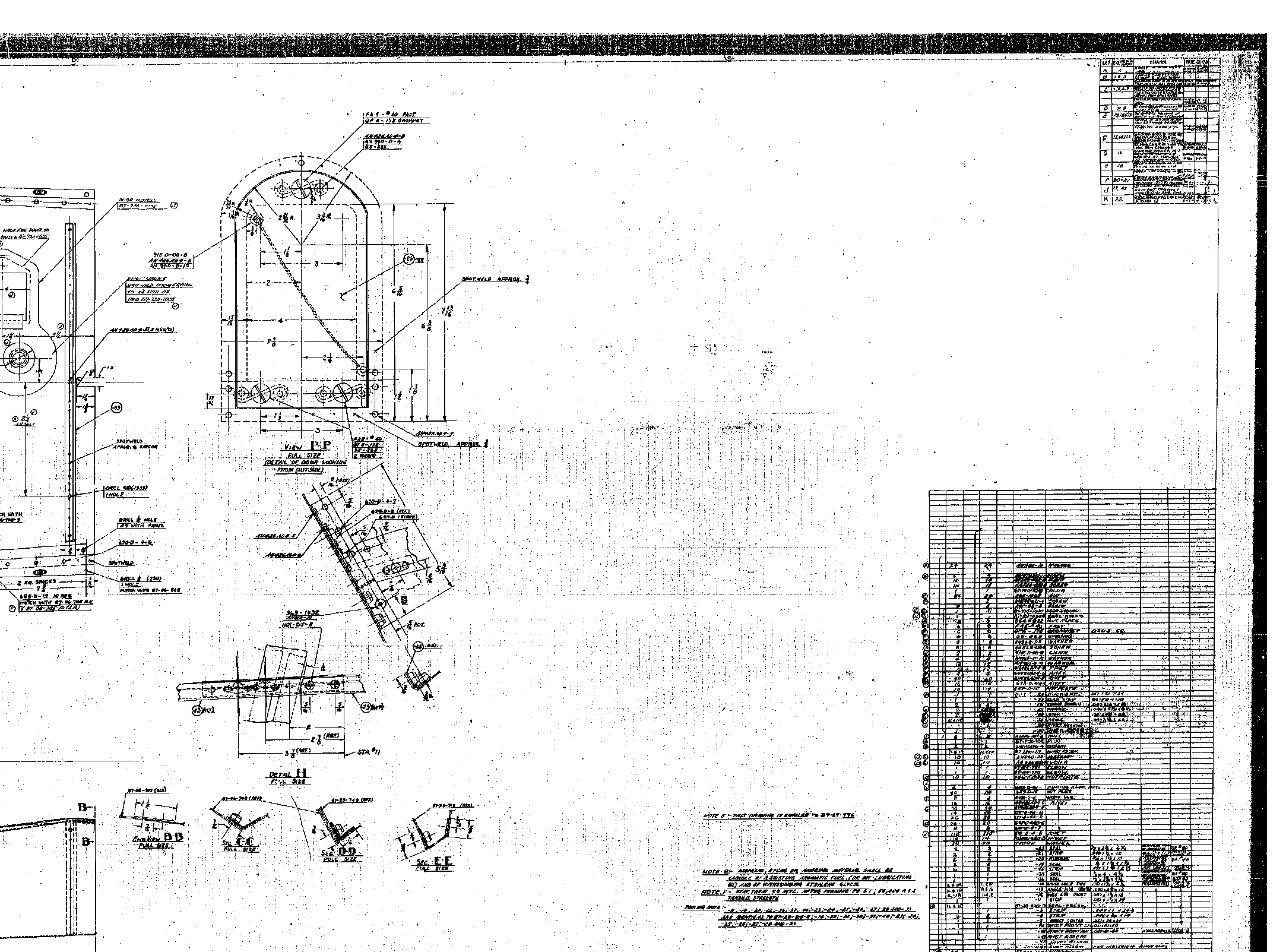
| Major Assembly - Cowl Assembly - Exit Duct Assembly |
| Part number |
Description |
| 55 |
29  |
  |
AN960-10 |
      Washer |
2   |
|
| 55 |
38  |
  |
AN320-3 |
      Nut |
2   |
|
| 55 |
39  |
  |
AN380C2-2 |
      Pin - Cotter |
2   |
|
| 55 |
42  |
  |
87-730-1012 |
    Duct Assembly - Exit |
1   |
, |
| 55 |
43  |
  |
87-730-1012-47 |
    Duct Assembly - Exit |
1   |
|
| 55 |
44  |
  |
87-730-1012-24 |
      Duct - Aft |
1   |
|
| 55 |
45  |
  |
87-730-1012-46 |
      Direct - Front |
1   |
|
| 55 |
46  |
  |
87-730-1012-45 |
      Direct - Front |
1   |
|
| 55 |
47  |
  |
87-730-1012-7 |
      Direct - Center |
1   |
|
| 55 |
5  |
  |
AN526-832-8 |
      Screw |
15   |
|
| 55 |
6  |
  |
87-29-790 |
      Elbow |
1   |
 |
| 55 |
7  |
  |
87-29-791 |
      Elbow |
1   |
 |
| 55 |
48  |
  |
87-730-1012-26 |
      Door |
2   |
|
| 55 |
9  |
  |
FA5-40 |
      Fastener (Dzus) |
3   |
|
| 55 |
10  |
  |
GF5-175 |
      Grommet (Dzus) |
3   |
|
| 55 |
49  |
  |
87-730-1011L |
      Ring Assembly |
1   |
|
| 55 |
50  |
  |
87-730-1011R |
      Ring Assembly |
1   |
|
| 55 |
51  |
  |
AN526-1032-12 |
      Screw |
4   |
|
| 55 |
29  |
  |
AN960-10 |
      Washer |
4   |
|
| 55 |
30  |
  |
AN365-1032 |
      Nut |
4   |
|
| 55 |
52  |
  |
87-29-806-30 |
      Bulkhead Assembly |
1   |
|
| 55 |
53  |
  |
AN3-4A |
      Bolt |
4   |
|
| 55 |
54  |
  |
AN960D10 |
      Washer |
4   |
|
| 55 |
30  |
  |
AN365-1032 |
      Nut |
4   |
|
|
  |
  |
|
|
  |
|
|
  |
  |
|
|
  |
|
|
  |
  |
|
|
  |
|
|
  |
  |
|
|
  |
|
|
  |
  |
|
|
  |
|
|
  |
  |
|
|
  |
|
|
  |
  |
|
|
  |
|
|
  |
  |
|
|
  |
|
|
  |
  |
|
|
  |
|
|
  |
  |
|
|
  |
|
|
  |
  |
|
|
  |
|
|
  |
  |
|
|
  |
|
|
  |
  |
|
|
  |
|
|
  |
  |
|
|
  |
|
|
  |
  |
|
|
  |
|
|
  |
  |
|
|
  |
|
|
  |
  |
|
|
  |
|
|
  |
  |
|
|
  |
|