Fig No. |
Index No. |
S t o c k e d
|
Group - Power Plant |
Units per assembly |
Blue prints |
| Major Assembly - Cowl Assembly - Rear Cowling And Cowl Flaps |
| Part number |
Description |
| 56 |
12  |
  |
1101DS10 |
    Screw |
6   |
|
| 56 |
17  |
  |
AN960D10 |
    Washer |
6   |
|
| 56 |
18  |
  |
AN365-1032 |
    Nut |
6   |
|
| 56 |
34  |
  |
87-29-703 |
    Flap Installation - Cowl |
  ref |
, , , |
| 56 |
35  |
  |
87-29-710 |
      Former Assembly |
1   |
, , , |
| 56 |
36  |
  |
87-29-093L |
      Flap Assembly - Upper |
1   |
 |
| 56 |
37  |
  |
87-29-093R |
      Flap Assembly - Upper |
1   |
 |
| 56 |
38  |
  |
87-29-107 |
        Bearing |
1   |
 |
| 56 |
39  |
  |
AN3-5 |
        Bolt |
2   |
|
| 56 |
17  |
  |
AN960D10 |
      Washer |
2   |
|
| 56 |
40  |
  |
87-29-100-1L |
    Flap Assembly |
1   |
|
| 56 |
41  |
  |
87-29-100-1R |
    Flap Assembly |
1   |
|
| 56 |
42  |
  |
87-29-108L |
        Bearing LH |
1   |
, |
| 56 |
43  |
  |
87-29-108R |
        Bearing RH |
1   |
 |
| 56 |
44  |
  |
1007D4-.584 |
          Bushing |
2   |
|
| 56 |
39  |
  |
AN3-5 |
        Bolt |
3   |
|
| 56 |
17  |
  |
AN960D10 |
        Washer |
3   |
|
| 56 |
45  |
  |
87-29-110 |
        Frame Assembly |
1   |
 |
| 56 |
46  |
  |
87-29-113-3 |
          Hinge Assembly |
2   |
|
| 56 |
47  |
  |
AN520-10-10 |
        Screw |
4   |
|
| 56 |
17  |
  |
AN960D10 |
        Washer |
4   |
|
| 56 |
18  |
  |
AN365-1032 |
        Nut |
4   |
|
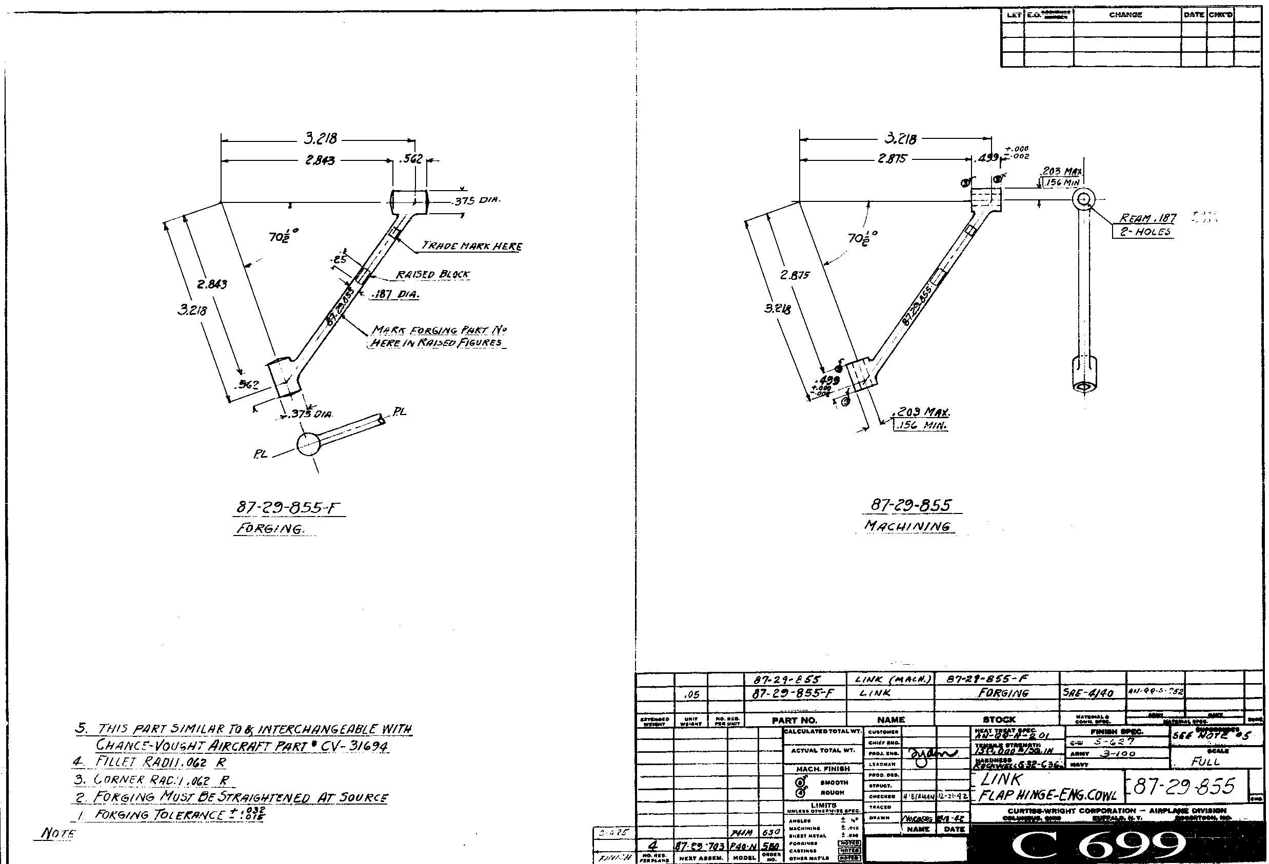
| 56 |
48  |
  |
87-29-855 |
        Link |
2   |
, |
| 56 |
49  |
  |
AN23-21 |
        Bolt |
2   |
|
| 56 |
17  |
  |
AN960D10 |
        Washer |
2   |
|
| 56 |
50  |
  |
AN320-3 |
        Nut |
2   |
|
| 56 |
51  |
  |
AN380C2-2 |
        Pin - Cotter |
2   |
|
| 56 |
52  |
  |
AN393-29 |
        Pin |
2   |
|
| 56 |
53  |
  |
AN6-21A |
    Bolt |
2   |
|
| 56 |
54  |
  |
AN960D1616 |
    Washer |
2   |
|
| 56 |
55  |
  |
AN365-624 |
    Nut |
2   |
|
|
  |
  |
|
|
  |
|
|
  |
  |
|
|
  |
|
|
  |
  |
|
|
  |
|
|
  |
  |
|
|
  |
|
|
  |
  |
|
|
  |
|
|
  |
  |
|
|
  |
|
|
  |
  |
|
|
  |
|
|
  |
  |
|
|
  |
|
|
  |
  |
|
|
  |
|
|
  |
  |
|
|
  |
|
|
  |
  |
|
|
  |
|