Fig No. |
Index No. |
S t o c k e d
|
Group - Power Plant |
Units per assembly |
Blue prints |
| Major Assembly - Fuselage Assembly - Engine Mount Installaiton |
| Part number |
Description |
| 49 |
35  |
  |
AN960-716 |
    Washer |
3   |
|
| 49 |
36  |
  |
AN310-7 |
    Nut |
3   |
|
| 49 |
15  |
  |
AN380C3-3 |
    Pin - Cotter |
3   |
|
| 49 |
37  |
  |
87-22-527-1 |
    Support - Engine mount vibration absorption housing LH |
2   |
|
| 49 |
38  |
  |
87-22-527-2 |
    Support - Engine mount vibration absorption housing RH |
2   |
|
| 49 |
39  |
  |
87-710-1011 |
    Support - Engine mountings |
2   |
 |
| 49 |
40  |
  |
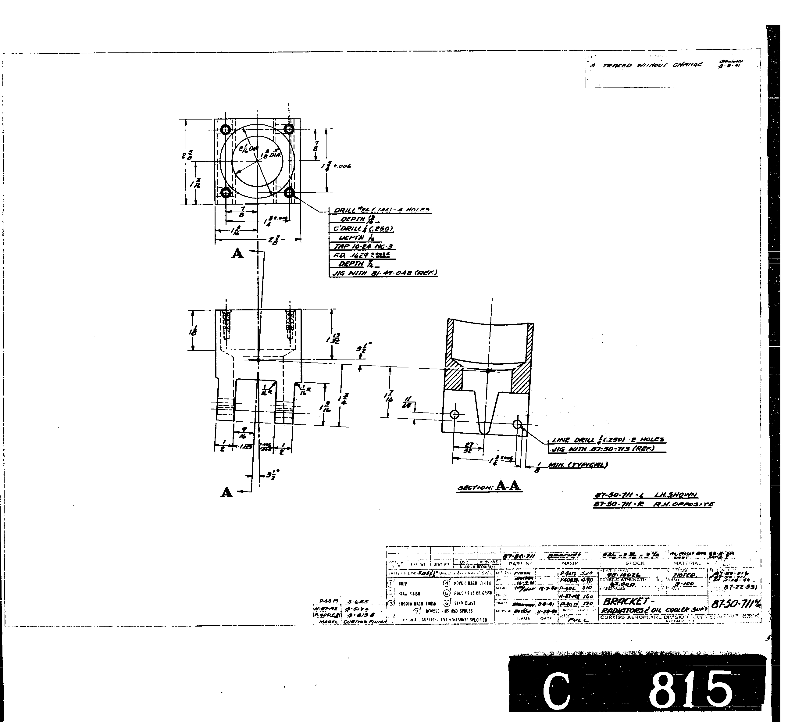
87-50-711L |
    Bracket - Radiator & oil cooler support LH |
2   |
 |
| 49 |
40  |
  |
87-50-711R |
    Bracket - Radiator & oil cooler support RH |
2   |
 |
| 49 |
41  |
  |
81-49-048-60 |
    Mounting |
2   |
|
| 49 |
42  |
  |
AN73A5 |
      Bolt |
8   |
|
| 49 |
43  |
  |
940D3126 |
      Washer |
8   |
|
| 49 |
44  |
  |
1075DA.125-.375-1.875 |
      Washer |
4   |
|
| 49 |
45  |
  |
87-22-715-1 |
      Support - Oil & prestone radiator |
1   |
 |
| 49 |
46  |
  |
87-22-715-3 |
      Support - Oil & prestone radiator |
1   |
 |
| 49 |
47  |
  |
87-22-715-2 |
      Support - Oil & prestone radiator |
2   |
|
| 49 |
48  |
  |
AN6-56 |
      Bolt |
1   |
|
| 49 |
49  |
  |
AN6-51 |
      Bolt |
1   |
|
| 49 |
13  |
  |
AN960-616 |
      Washer |
2   |
|
| 49 |
14  |
  |
AN310-6 |
      Nut |
2   |
|
| 49 |
15  |
  |
AN380C3-3 |
      Pin - Cotter |
2   |
|
| 49 |
50  |
  |
87-22-516L |
      Fitting - Engine mounting bearer tube LH |
1   |
 |
| 49 |
50  |
  |
87-22-516R |
      Fitting - Engine mounting bearer tube RH |
1   |
 |
| 49 |
51  |
  |
87-22-516-1L |
        Fitting LH |
1   |
|
| 49 |
51  |
  |
87-22-516-1R |
        Fitting RH |
1   |
|
| 49 |
52  |
  |
1001D12-.874 |
        Bushing |
1   |
|
| 49 |
34  |
  |
AN7-35 |
      Bolt |
2   |
|
| 49 |
35  |
  |
AN960-716 |
      Washer |
2   |
|
| 49 |
36  |
  |
AN310-7 |
      Nut |
2   |
|
| 49 |
15  |
  |
AN380C3-3 |
      Pin - Cotter |
2   |
|
| 49 |
53  |
  |
AN6-35 |
      Bolt |
1   |
|
| 49 |
13  |
  |
AN960-616 |
      Washer |
1   |
|
| 49 |
14  |
  |
AN310-6 |
      Nut |
1   |
|
| 49 |
15  |
  |
AN380C3-3 |
      Pin - Cotter |
1   |
|
| 49 |
54  |
  |
87-22-527-3 |
      Support - Engine mount vibration housing LH |
2   |
|
| 49 |
55  |
  |
87-22-527-4 |
      Support - Engine mount vibration housing RH |
2   |
|
| 49 |
39  |
  |
87-710-1011 |
      Support - Engine mountings |
2   |
 |
| 49 |
56  |
  |
87-22-532 |
    Bolt - Engine mount vibration absorption housing |
2   |
 |
| 49 |
57  |
  |
AN960-1216 |
    Washer |
2   |
|
| 49 |
58  |
  |
AN310-12 |
    Nut |
2   |
|
| 49 |
59  |
  |
AN380C4-5 |
    Pin - Cotter |
2   |
|
| 49 |
60  |
  |
87-22-517 |
    Link - Lower truss to firewall center |
2   |
|
| 49 |
61  |
  |
87-22-517-1 |
      Link - Lower truss to firewall center |
1   |
, , |